来源:乐居财经
2025-12-03 18:14:32
(原标题:杨浦滨江,风貌新物种来了)
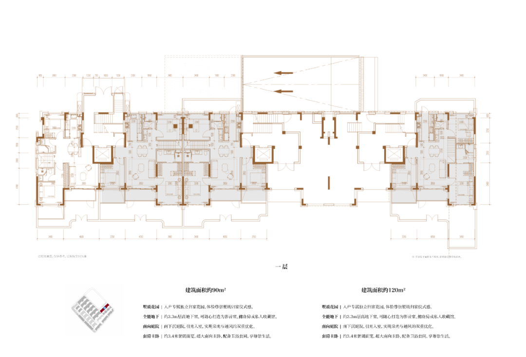
中建壹品外滩元境户型图官宣,将推建面约82-268㎡风貌洋房产品。
项目主打多层退台式洋房,另有3套联排产品,是上海首个全精装风貌洋房社区。

这种做法将面积赠送做到了极致:首层私家花园、地下室、采光花园赠送;二层大面积阳台露台赠送;三层大尺寸露台赠送,并带有闷顶。
层高也高于传统常规洋房产品,3.3-3.6m层高对标别墅产品层高。
户型选择也很多样,包括上叠、下叠、平墅等在内,共有十余种户型。
最小建面82㎡户型,大概率1000万起就能入住滨江洋房,价格很有吸引力。
建面约104㎡3房2厅2卫(一层下叠)

















凤凰网
2025-12-12
乐居财经
2025-12-11
乐居财经
2025-12-09
凤凰网
2025-12-09
乐居财经
2025-12-08
乐居财经
2025-12-08
证券之星资讯
2025-12-20
证券之星资讯
2025-12-19
证券之星资讯
2025-12-19